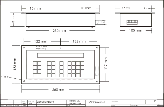
diese System ist in der Urspungsform nicht mehr lieferbar, kann aber noch gepflegt, bzw. gewartet werden.
für Neu-Instalationen bieten wir komfortable Lösungen auf SPS-Basis mit HMI an
278002
miniterminal02
[Home] [Wir ueber uns] [Automation] [Wickeltechnik] [Verlegerechner] [Miniterminal] [Profibus] [Pruefmaschinen] [Service] [Download] [Kontakt]